
H642X气动池底排泥阀又名池底快开排泥阀,主要安装于各类池子底部,作排除泥沙用。是结合国外先进技术自主开发生产,是现目前国内质量最稳定的排泥阀。还可按照用户要求生产和加工。
结构原理
H642X气动池底排泥阀由阀体,液压缸,活塞,阀杆,阀瓣组成。液压缸是液体工具,液体作为动力,活塞,阀杆作为开关。开启只需要一分钟可以打开阀板,此阀必须配用手动换向阀或电磁阀可远距离控制排泥阀开关。该阀密封件性能强,开关灵活,检修方便,使用寿命长等特点,寿命可长达五年以上,保用期十八个月。
标准规范
设计与制造标准:GB12235-89
法兰连接标准:GB/T17241.6-98
试验和检验标准:GB13927-92
阀门材料标准:GB12226-89
技术参数
阀体部分 | 型号 | H642X-10 | H642X-16 | |
公称压力(MPa) | 1.0 | 1.6 | ||
试验 | 密封(MPa) | 1.1 | 1.76 | |
强度(MPa) | 1.5 | 2.4 | ||
适用介质 | 水 | |||
温度(°C) | <80 | |||
| 驱动介质 | 水(使用压缩空气,订货注明) | ||
驱动压力(MPa) | 0.3—1.0 | |||
介质温度(°C) | <50 | |||
控制部分 | 控制器输入电压(V) | AC220 | ||
电磁阀线圈电压(V) | AC220 | |||
电磁阀线圈功力(W) | 10—15 | |||
零部件材料
零件名称 | 阀座 | 阀瓣 | 阀杆 | 缸体 | 活塞板 | 活塞皮碗 |
材料牌号 | HT200 | HT200 | 不锈钢 | HT200 | HT200 | 耐磨丁晴橡胶 |
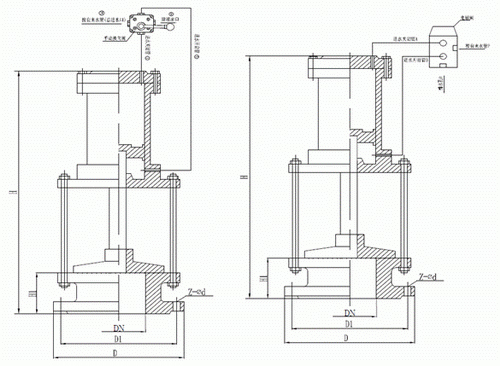
外形结构图

主要外形尺寸
公称通径 | D | D1 | H | H1 | Z-φd | 进液管连接 |
100 | 215 | 180 | 450 | 110 | 8-18 | 1/2” |
150 | 280 | 240 | 490 | 110 | 8-23 | 1/2” |
200 | 335 | 295 | 530 | 110 | 8-23 | 1/2” |
250 | 390 | 350 | 570 | 110 | 12-23 | 1/2” |
300 | 440 | 400 | 610 | 140 | 12-23 | 3/4” |
400 | 565 | 515 | 710 | 140 | 16-25 | 1” |
500 | 670 | 620 | 810 | 160 | 20-25 | 1” |
安装示意图

|
综合信息: |
|
| 型号名称:H642X气动池底排泥阀 | 公称通径:DN100~DN400 |
| 公称压力:1.0MPa~1.6MPa | 阀体材质:铸铁、铸钢、不锈钢 |
|
产品品牌:NEPTUNE 佰阀通 |
加工定制:支持来图来样定制加工 |
|
连接方式:对夹,法兰,螺纹,焊接(承插,对焊) |
其他材质:球墨铸铁,铸钢,不锈钢,合金钢,特殊钢 |
|
出厂颜色:以出厂为准,可定制其他颜色 |
包装规格:纸箱/木箱 |
|
驱动方式:手动,蜗轮传动,电动,气动,自动 |
运输方式:快递,物流,航空 |
|
制造标准:国标GB、德国DIN、美国API、ANSI |
生产厂家:上海佰阀通流体控制有限公司 |
声明:为确保【H642X气动池底排泥阀】在工艺控制中安全可靠、经济高效,建议根据介质特性、压力范围、流量需求及安装环境等参数进行科学选型。欢迎致电我司销售与技术团队,我们将第一时间为您提供专业、高效的选型支持与解决方案! |